The proposed single family residence replaces a residence which was destroyed by Woolsey Fire in November of 2018. This massive fire destroyed nearly 1600 structures in addition to the wild life and natural habitat and relocated nearly 300,000 residences of the community. Scale and magnitude of this catastrophic fire can be seen on the press photos shown on sheet A1.
Rethinking The Future Awards 2022
Third Award | Private Residence (Small-Medium) (Concept)
Project Name: 5918 Philip Ave. Single Family Residence, Malibu, California, USA
Studio Name: McClellan, Badiyi & Associates Architects
Design Team: Bahram Badiyi-Principal in Charge of Design, Robert McClellan, George Tobias
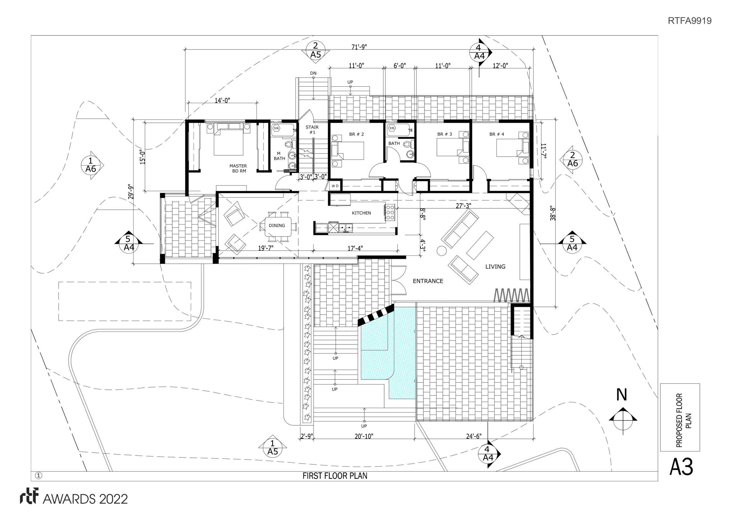
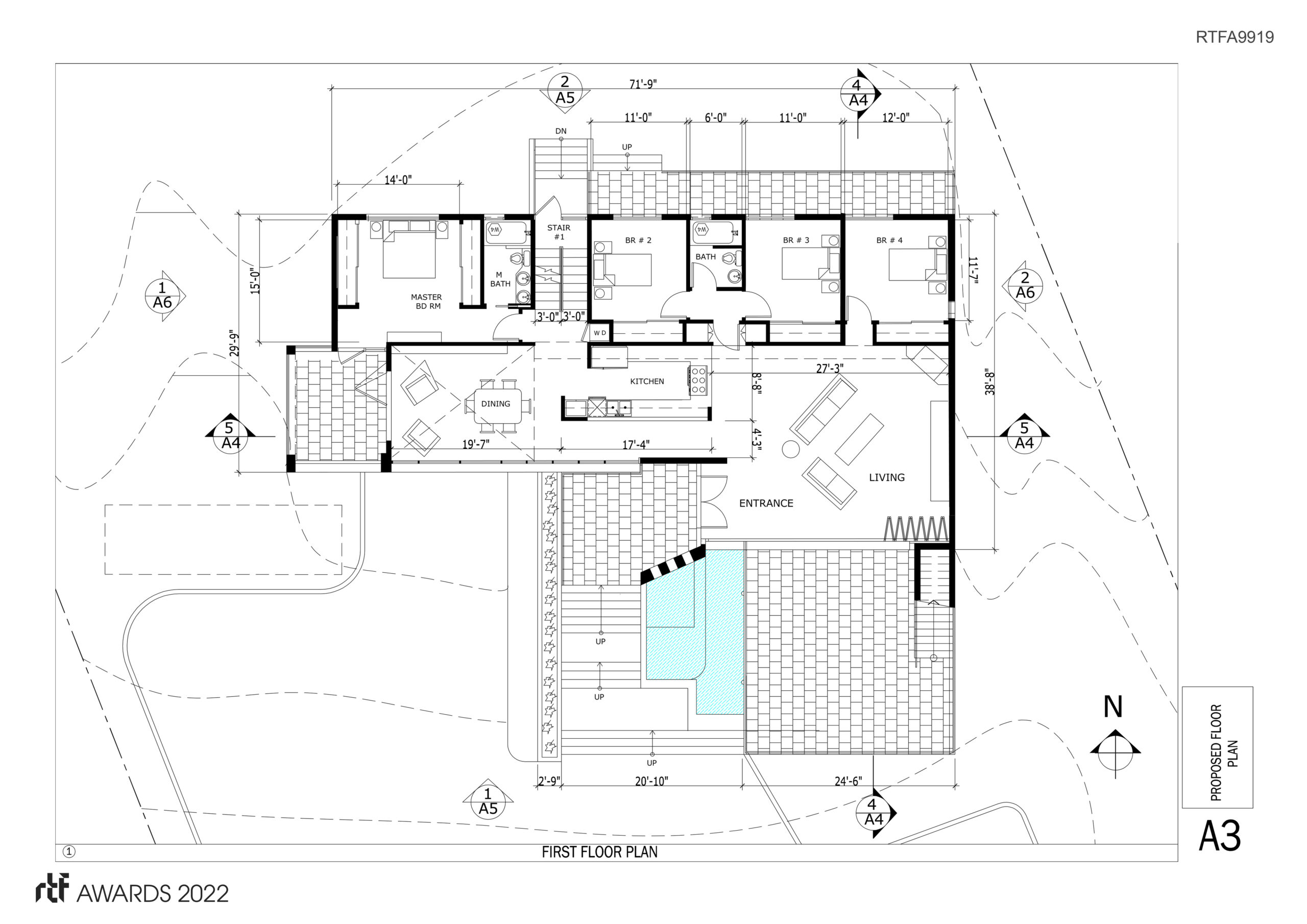
Area: Land Area: 25,237 SF, House 2,640 SF, Garage 440 SF, Zone RR-2 (Rural Residential-Medium)
Year: 2020-22
Location: Malibu, California, USA
Consultants: KCE Matrix Inc. Structrual Engineers, Perfect Design, M,E,P and T24
Photography Credits: Shanghai Halo Architectural Visualization Co.,Ltd
Other Credits: Text by Bahram Badiyi and Robert McClellan
Client/Property Owner: Ayelet Tamir, Global Properties Solution LLC.

In order for the rebuilding process to be expedited, new buildings need to fit within the foot print of the former buildings at the site and maintain similar heights. The City allowed for 10% area increase from the original area. Outdoor decks are not to be considered as part of allowable square footage. The height limit was established at 29 feet for top ridge of sloping roof and 26 feet for any flat roof or deck. The original building area stood at 2,400 square feet and the new area was proposed to be 2640 square feet (2400+10%). Garage area stood at 400 Square feet and the new garage will be 400+10%=440 square feet

The building’s concept is the attachment of two parts, one the private section and the other, semi private section as shown on 1 & 2/A2. Views from the site are shown on sheet A1. A reminder that is constantly present in the ocean view from the proposed site with ships moving up and down the coast of California. The two part concept is also present when arriving at the main entrance court as the fountain wall separates the living and dining area visually. Both the private and semi-private areas have their own tall spaces (see 5/A4), one over the dining area and one accommodating stair that run from garage all the way to observation deck. The “two part” theme is carried in the interior by a soffit that is illuminated and shown on section 4/A4. The concept allows the house to be very open and seem larger than its size given the continuity and light between dining, kitchen, living and outdoor decks (over all floor plan on A3). All this accomplished within the area and footprint limitations.

As part of emergency management system, consideration had to be given to fire truck access and its manoeuvring space as shown on 2/A2. The construction system minimizes wood for main structural elements of the building and uses concrete and steel. Also to protect the new house a junior sprinkler system was proposed which includes an underground water tank with capacity of 45 minutes spraying capability. The water for the tank is collected from recycled water collected from ground and roof both filtered through the catch basin as shown on sheet 1/A4. In addition the filtered water from the tank is used to activate a fountain at the entrance to the house thus making the water constantly well ventilated travelling back and forth to and from the tank and keep the fountain active as a welcoming feature to the house.







