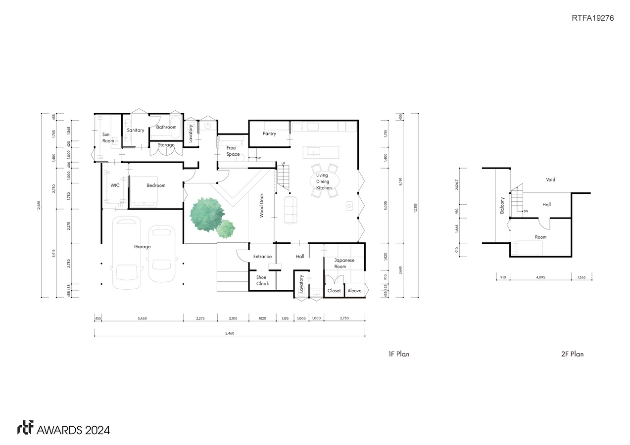
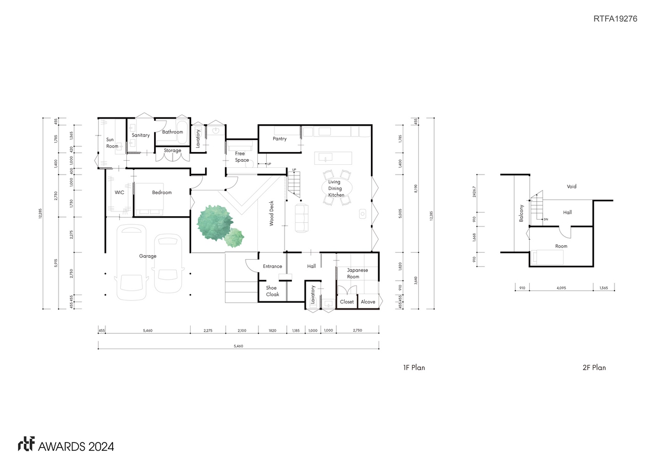
The clients are a couple with a young child, and the husband is a collector of vintage furniture. The concept is a house for living with furniture. Instead of the original process of selecting furniture that matches the architecture, we worked on the process of designing architecture that matches the interior, including the furniture of the owner.
Rethinking The Future Awards 2024
Third Award | Housing (upto 5 floors) (Built)
Project Name: U-HOUSE
Category: Housing (upto 5 floors) (Built)
Studio Name: BAUM Ltd.
Design Team: BAUM
Area: Architecture
Year: 2022
Location: Fukui city, Fukui prefecture, Japan
Consultants:
Photography Credits: Naoki Myo

In order to create a furniture-centered design, a house to live with furniture, and a space where furniture in any room can be seen and hidden from the rest of the house, we aimed to create a flat house-like appearance without dividing the level as much as possible.

While we wanted large openings, we also decided to create a house which has not a garden but a courtyard due to issues of privacy from the surrounding environment and the landscape. Considering the fact that the house would be frequented by the client’s guests, the floor plan was created by arranging the public and private spaces in a gradient pattern and rounding them off to create a courtyard.

Fukui Prefecture is located in the middle of Japan on the Japan sea side and is known as one of the most rainy and snowy regions. Our design is subjected by the ever-present natural conditions of climate issues, rather than mere visual inspiration.

The surrounding area of this house is residential. The roof shape was carefully designed to prevent heavy roof snow from falling on the neighboring houses. To prevent snow from falling onto neighboring properties, the slope of the roof was designed to be curved so that snow would slide down more gently than with a straight slope. The south-facing roof, which receives more sunlight and melts snow more easily, is larger, while the north-facing roof, which receives less sunlight, is smaller.





