This is a project for rebuilding a residential building in a small site of Tokyo *Kiba. For adaptation of the various lifestyles and improving the added value of the building, we designed multiple spaces by using exceptional cases of maisonnette style housing to the building standard law.
Global Design & Architecture Design Awards 2021
Second Award | Category: Housing (over 5 floors) (Built)
Project Name: KIBA Tokyo Residence
Project Category: Housing (over 5 floors) (Built)
Studio Name: SAKAE Architects & Engineers
Design Team:
≫SAKAE Architects & Engineers
Eisuke Yamazaki
Toshio Yoshikawa
≫Design cooperation
Hiroshi Sakaguchi
≫Structural design
Hiroshi Takeda
≫Facility design
Koichi Nagashima
≫General contractor
Kaneko Komuten
Area: 395.52sqm
Year: 2019.06.03
Location: Kiba, Koto-ku, Tokyo, Japan
Consultants: None
Photography Credits: Koji Fujii (Nacasa & Partners Inc.) / Yuichi Higurashi
Text Credits: Eisuke Yamazaki
Other Credits: SAKAE Architects & Engineers

Also, we attempted to put the building in harmony with the historic site of Kiba which was known for lumber dealings. We try to make new values and new lifestyles by the inside, and to show historical and cultural heritage by the outside.日本語 の翻訳です。
*Kiba: The name of a place. “Ki” means wood, and “ba” means town.
>The capability of a small residential building in a city.
We have been witnessing the problems of the deterioration of old buildings and the excess number of open spaces in a small site of Tokyo lately. The majority of those properties in fact have been wiped out by the urban renewal. In this project, we endeavored to explore the capability of a small residence in a small site in the center of Tokyo.
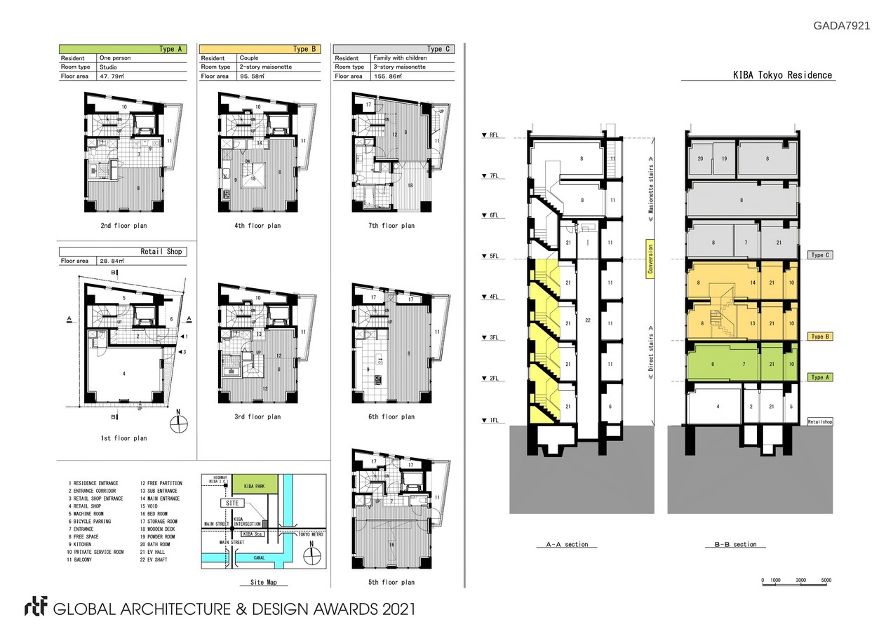
In order to adapt the various lifestyles of the city as well as maximize the potential of the small building, we designed the structure with multiple spaces based on the lifestyle despite the strict restrictions given by the size of the site. Therefore, we accomplished to have 3 different types of housings, namely a residence for one person (Type A), a couple (Type B) and a family with children (Type C) in a single building. Even though the size of the building is small, the different types of housings are being together, therefore constructed the fine community of a residence in a city.

>Re-creating the landscape of Edo Tokyo Kiba.
As for the site, due to the huge quantity of the land as well as the access to the water in the center of Edo Tokyo, there used to be lots of lumber retailers that had its lumbers piled up in front of the store as well as leaned against its entrance in Kiba. However, since most of the business moved its location to Shin(New)-Kiba in 1981, we no longer see the original landscape.
Taking these issue into consideration, the facade of the building is designed by an image of the original landscape of Kiba. The facade consists of two elements, the latticework and the wooden louver. A design of the grid windows and sashes comes from the Kouraiya latticework, which is one of the most iconic latticework of the Edo period. The wooden louver reminds us of the original landscape of Kiba which was the lumber leaned against the entrance of a lumber retail shop vertically.

>KIBA Tokyo Residence
In this project, we took account of these previously mentioned factors in terms of the design for the inside and the outside of the building. Namely, not only did we attempt to endeavor the capability of a small residence in a city, we also put effort into re-creating the landscape of Edo Tokyo Kiba.


