Founders Henry and Emily Folger established The Folger Shakespeare Library (FSL) in 1932 as a gift to the American people. FSL has one of the world’s most extensive collections of printed works by William Shakespeare and the greatest number of First Folios. Education and outreach were the driving forces behind a comprehensive building renovation, including new accessible entries, core, and changing galleries that are free to the public.
Rethinking The Future Awards 2025
First Award | Exhibition Design (Built)
Project Name: Folger Shakespeare Library Museum
Category: Exhibition Design (Built)
Studio Name: Studio Joseph
Design Team:
Wendy Evans Joseph, Partner-in-charge
Monica Coghlan, Design Partner
Jose Luis Vidalon, Managing Partner
Design Team: Chris Spadazzi, Alexandra Adamski, Anthony Roy, Daniel Toretsky, Ruben Gomez Diaz
Area: 8,000 SF
Year: 2024
Location:The Folger Shakespeare Library 201 E Capitol St SE Washington, DC 20003
Consultants:
Media Design: Bluecadet
Narrative Development: Storythings
Fabrication: Kubik Maltbie
Media integration: Kubik Maltbie
Photography Credits: Naho Kubota
Render Credits: All renderings and drawings by Studio Joseph
Other Credits: N/A

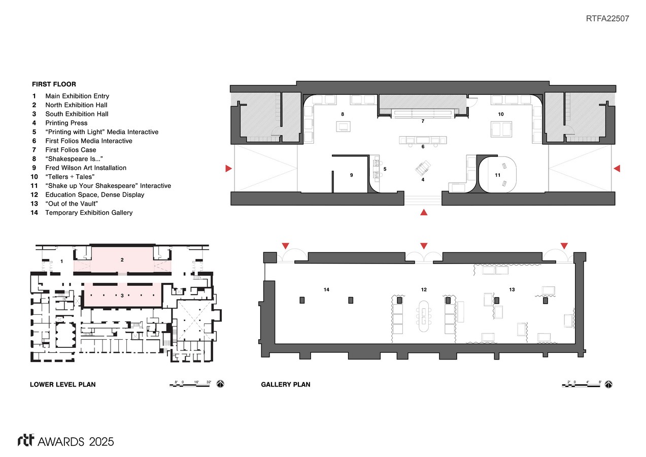
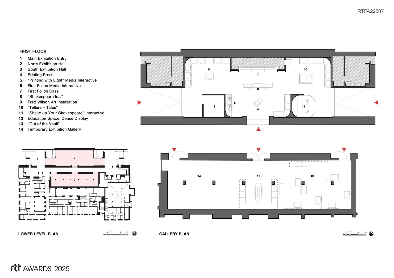
The design premise is to take Shakespeare off his pedestal and bring his works to everyone. There is no “Shakespeare test,” but rather questions, insights, and gentle provocations—adapt the sacred, embrace the profane, reframe Shakespeare worship, and relish in the playful, mundane, and irreverent. The design challenge was creating an exciting visitor experience that would bring Shakespeare to all via works on paper while adhering to the highest conservation requirements.
Gallery Design
A high conservation case for the Folger’s 82 first folios is at the physical and spiritual center of the experience. Visitors can use interactive media to dive deeply into content to find interesting facts that illuminate the unique quality of each folio’s 400-year history. Who owned it? What marks did they leave?

The Folio Case is a tour de force with multiple layers of security, a VESDA system, fire safety, conservation materiality, dedicated supply and return air ducts, temperature and humidity control, and ambient and programmed lighting that is in sync with the media interactive.
The entire gallery is “papered” in a bold graphic printed on 8.5×11 Tyvek leaves, creating a bold, textured environment that graphically holds the narrative while unifying diverse stories. Given that the library’s collection is almost entirely made up of books, the challenge of making them enjoyable to visitors meant creating a strong visual and spatial armature.

To further convey the difficulty of printing in the 1600s, an interactive experience, “Printing with Light,” allows visitors to assemble phrases using facsimile blocks and see how they would print. To further unpack ideas of racism, power, and royalty during the Renaissance, Fred Wilson created an inhabitable sculpture that makes connections between a portrait of Queen Elizabeth and visitors as they are reflected in a facetted, black glass mirror. This work helps us find a shared humanity.

Community Outreach
The Folger’s building is seen as imposing, and audiences do not see themselves represented in either content or staffing. There are perceived intellectual, cultural, and economic barriers. The exhibits focus on a more racially and economically diverse D.C. audience, including African American residents in underserved communities. New programs and events will attract families and build trust

Transparency is critical to achieving an accessible and equitable experience. It helps visitors understand the Folger’s inner workings and demystifies aspects of the institution that may seem too intellectual or unachievable. By pulling back the curtain and inviting visitors into the narrative, Folger can spark curiosity through education.





