Rated as one of Golf Digest’s top public golf courses, Edgewood Resort and Golf Clubhouse has welcomed some of the biggest names in the game. Players like Tiger Woods, Arnold Palmer, Phil Mickelson, John Daly, and Lee Trevino have all teed up here, adding their masterful strokes to this mighty legend on the lake.
Rethinking The Future Awards 2024
First Award | Hospitality (Concept)
Project Name: Edgewood Clubhouse
Category: Interiors – Hospitality (Concept)
Studio Name: Kay Lang + Associates
Design Team: Kay Lang, Elisa Cirieco, Seth Kornreich, Fabian Urfano, Susan Prann
Architect of Record: Collaborative Design, Architects registered in Reno, NV (Kay Lang + Associates working as consultant under the direction of Architect of Record)
Area: 31,753 Square Feet
Year: 2022 – 2025
Location: South Lake Tahoe – Reno, NV
Consultants: Lighting Design Alliance, TriMark
Photography Credits: N/A
Render Credits: Jeff Brink, Inc.
Other Credits: Collaborative Design Studio – Architect

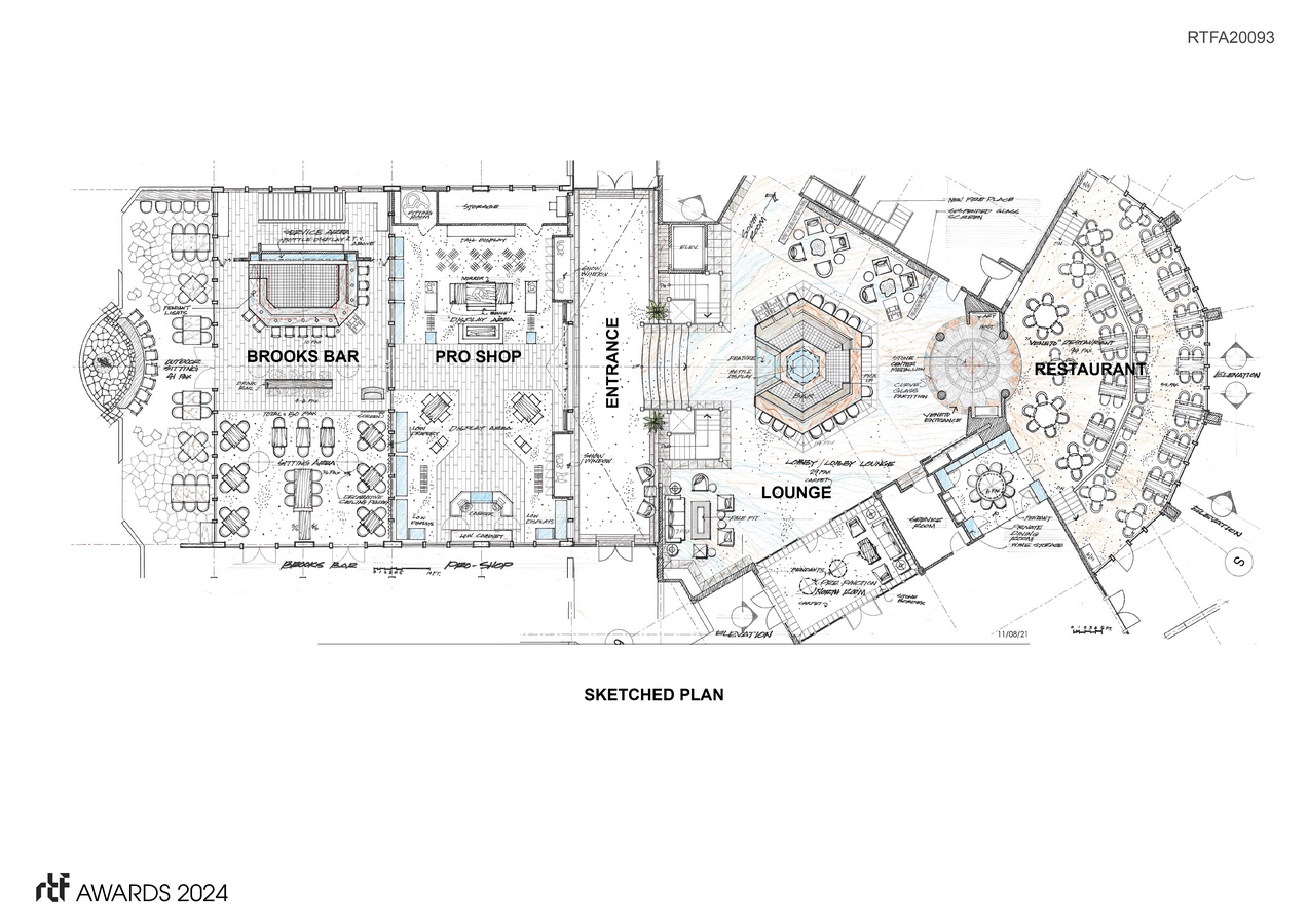
The newly designed Clubhouse will have a new Pro shop, a new Bar which overlooks the 1st hole and a newly designed social space (with an added central bar) that is adjacent to renovated meeting spaces. The Clubhouse will also have a newly designed Specialty Restaurant which overlooks the lake, with the hopes of receiving a Michelin Star within the first year.

One-of-a-kind challenges, natural marvels, and enduring championship-caliber memories will be created in the newly renovated Edwood Golf Clubhouse. Golfing experience and dining will be special when you are playing at an altitude of more than 6,200 ft. on the shores of America’s most majestic alpine lake or dining on the water’s edge surrounded by the pristine lake.




