Biosquare São Paulo: A real skyscraper that enshrines Pinheiros Street as a strategic area for corporate São Paulo.
Rethinking The Future Awards 2025
First Award | Office building (Concept)
Project Name: Biosquare
Category: Office building (Concept)
Studio Name: Perkins&Will São Paulo
Design Team: Douglas Tolaine, Fernando Vidal, Lara Kaiser, Adriana Barbosa, Gabriel Freitas, Cassia Moral, Fabio Menezes, Adriano Alves, César Ramos, Fatima Oliveira, Daniel Falcão.
Area: 55.000 sqm
Year: 2025
Location: Rua Capitão Antônio Rosa, 444 – São Paulo, SP – Brazil
Realization and Incorporation: Kinea and G.D8
Construction: Libercon Engenharia
Photography Credits:
Render Credits: Neorama
Other Credits:

We can build the future now. With new shapes, new paths, colors and sensations, Biosquare São Paulo presents the future beyond windows. The future of work, network, living, and, most of all, the future of urban life. This is more than just a project – it is the insight to create a legacy for the city. Inspired by people’s desires, dreams and ambitions. It is technologic, green,and walkable. Sustainability is at its core, with a focus on wellness. Designed from the people to the whole, connecting individuals to collectiveness and the square to the city.
Biosquare was designed to follow the premises of a sustainable project attuned to the most important issues of our time: Project in the process of certification under the ESG and LEED seals. Design with Fitwel Certification.
Such innovative project could only be in the heart of São Paulo’s most innovative region.

Pinheiros is a reference. Trends that embrace business and gastronomy emerge from the neighborhood’s streets. Amidst the cultural effervescence, Pinheiros street provides unique experience for those working or living in the area. Rated with 99% walkability, it has gained the status of walker’s Paradise (walker score®).

One of the project’s strengths is the fact that it is surrounded by awarded restaurants, stores, cafés, cultural places and services within 150 meters. The easy car access from Rebouças, coming from Faria Lima or Paulista, its proximity to Marginal Pinheiros, the access to cycleways and mass transport complements the mobility package aimed at the future. Strategic location: Awarded restaurants in the surrounding area, infrastructure and services.
Access to pedestrians and vehicles, with porte-cochere and valet on the ground floor.

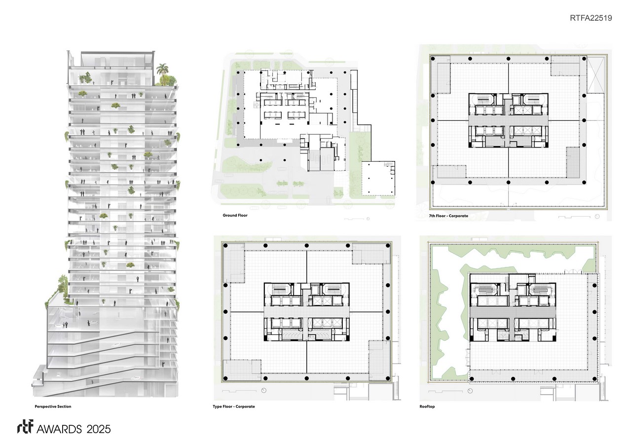
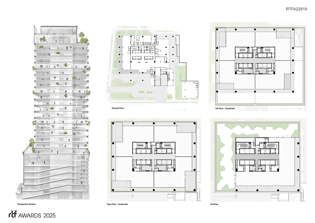
The green block is a step ahead from everything you’ve heard of – The synthesis of biophilic architecture.
The project’s façade was designed to reach the best energetic/visual comfort. The boulevard with native forest is open to the district: Every aspect of the new business center is smart and thought of for occupants’ wellness and health. A new perspective for a new corporative center: Native vegetation, walkable, safe and integrated into the district.
Rooftop with sight for Jardins neighborhood set up for holding corporative restaurant plaza with landscape area.

Integrated interior
Biosquare’s interior design seeks to value our essence from Brazilian natural elements. One specific material turns into our great force – basalt. On the floor, it becomes part of the architecture, landscaping, Interior and decoration, where the texturized walls on natural rock stand out, bringing the sensation of integrity and naturalness into the project on a two-story ceiling lobby over 5-meter high. The strong conceptual integration between outdoor and indoor broadens the physical dimensions of Biosquare across the vegetation and the materiality consistency.
Following the world trend of recovering urban mobility and circulation, Biosquare provides bicycle parking with charging station and dedicated changing rooms.
Corporate floor up to 2.6 thousand m². Biophilic design, cross ventilation, environmental comfort, and reversible terrace. Spaces that connect corporative models for a new world: a mirror for the future of work. Inclusive, modern, sustainable. The perfect balance between city, urbanism and users.

“From the very beginning, we searched for a new experience – not only for the building goers, but also for Pinheiros neighborhood and the city as a whole”, says the lead architect of the project. “Biosquare is a building connected to the streets, close to pedestrians and integrated with the urban landscape. It seeks to bring sensorial feelings and experiences to users and everyone in the public walkway.” It is open and connected with people, without compromising the contact with nature and the biophilia.





